MASTERS GROUP ™


Газовый настенный котел Vaillant turboTEC plus VUW 202/5-5 обеспечивает надёжное отопление и горячее водоснабжение. Двухконтурный прибор автоматически поддерживает заданную температуру воды, облегчая эксплуатацию. Модулирующая горелка оптимизирует потребление газа, сокращая расходы. Проточный теплообменник устойчив к накипи, гарантируя долгий срок службы. Минимальный зазор для установки - всего 10 мм. Устройство оснащено надёжными элементами безопасности, включая защиту от замерзания и заклинивания. Интуитивная диагностика и управление через ЖК-дисплей добавляют удобства в использовании. Подходит для различных жилых помещений, не рассчитан на каскадные установки. Упрощённый монтаж и эксплуатация с системой eBus.


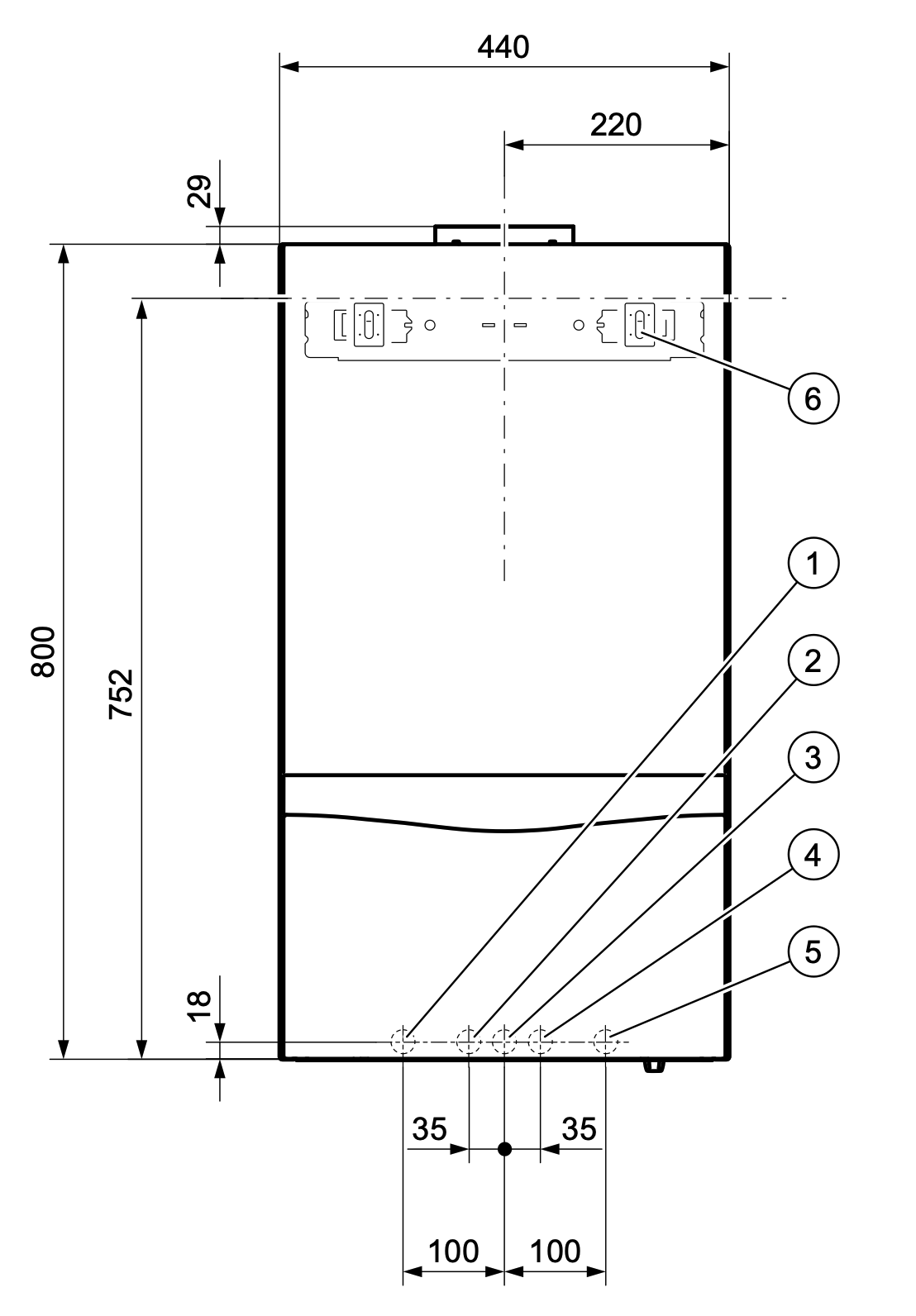
1 Подающая линия системы отопления, R 3/4”
2 Выход горячей воды, R 3/4”
3 Подсоединение газа:
гладкая труба 15 под обжимной переходник
на R 3/4”
4 Вход холодной воды, R 3/4” на 1/2”
5 Обратная линия отопления, R 3/4”
6 Кронштейн (скоба) для подвески аппарата
7 Патрубок дымохода/воздуховода 600/100 мм

Если вы не нашли нужную интрукцию, то свяжитесь с нами по телефону 8 (911) 923-75-08

Главная благодарность за наш труд — это ваше спокойствие и комфорт в каждом уголке вашего жилья.




Газовые котлы Vaillant turboTEC — это инновационные устройства для отопления и горячего водоснабжения. Они сочетают высокую эффективность, компактность и удобство управления, подходя для любых жилых помещений.






Гидравлика котлов Vaillant turboTEC обеспечивает эффективную циркуляцию теплоносителя и стабильную работу отопления. Встроенный циркуляционный насос с автоматическим переключением ступеней оптимизирует поток воды, снижая энергозатраты. Закрытый расширительный бак компенсирует изменение давления, а автоматический воздухоотводчик предотвращает образование воздушных пробок. Перепускной вентиль регулирует давление, обеспечивая безопасность системы. Такая конструкция гарантирует надёжность и долговечность котла.



Котлы Vaillant turboTEC спроектированы с учётом удобства обслуживания. Все ключевые узлы, такие как циркуляционный насос, расширительный бак и теплообменник, доступны спереди, что значительно упрощает проведение технических работ. Автоматические системы защиты, включая защиту от замерзания, заклинивания насоса и перегрева, минимизируют необходимость вмешательства пользователя. Это делает эксплуатацию котла максимально комфортной и снижает затраты на обслуживание.







Превратите ваш котел Vaillant в интеллектуальное устройство с системой vLINK. Управляйте, контролируйте и оптимизируйте работу вашего отопления и горячего водоснабжения из любой точки мира. Простое и удобное приложение делает ваш дом комфортным, а вашу жизнь — проще.

Регулируйте температуру, включайте или выключайте котел, настраивайте режимы работы прямо со смартфона. Больше не нужно беспокоиться, если вы забыли что-то изменить перед выходом из дома.

Управляйте отоплением в загородном доме, квартире или офисе через одно приложение. Все объекты под рукой!

Делитесь управлением с близкими. Теперь ваша семья тоже может контролировать комфорт в доме.

Решайте вопросы быстро и удобно. Общайтесь с сервисным центром прямо в приложении, без звонков и ожидания.
Мы используем файлы cookie и аналогичные технологии для улучшения вашего опыта на нашем веб-сайте. Прочтите нашу Политику конфиденциальности.