MASTERS GROUP ™


Газовый котёл Vaillant ecoTEC plus VU INT IV 486/5-5 — высокоэффективный одноконтурный конденсационный котёл, предназначенный для отопления. Оснащён модулирующей горелкой (18-100% мощности), эффективным конденсационным теплообменником из нержавеющей стали и DIA-системой для управления. Котёл имеет высокий КПД до 109% и низкий уровень выбросов NOx (<20 мг/кВт·ч). Подходит для системы радиаторного и панельно-лучистого отопления, в т.ч. низкотемпературных, и может использоваться в новостройках или при реконструкции. Кроме того, оборудован эффективными насосами, различными датчиками, предлагает расширенные возможности настройки и обслуживания. Идеален для компактных котельных и обеспечивает надёжность работы в течение всего отопительного сезона.





Регистрация оборудования по адресу объекта — это не бюрократия, а ваша защита и приоритетное право на проект. Производитель физически не отгрузит котел без привязки к адресу. Поэтому мы запрашиваем адрес до коммерческого предложения: без этого шага проект не получает защиты, а мы не можем работать дальше.







Если вы не нашли нужную интрукцию, то свяжитесь с нами по телефону 8 (911) 923-75-08
| Обозначение | Элемент | Характеристика |
|---|---|---|
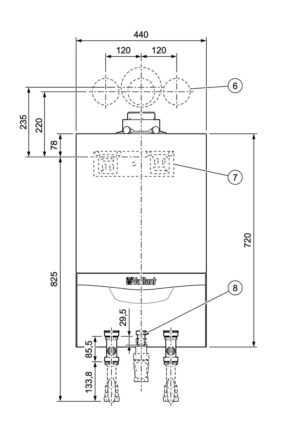
| 1 | Сифон конденсата | - |
| 2 | Патрубок подающей линии отопления | G 1 1/4" |
| 3 | Подключение газа | R 1" |
| 4 | Патрубок обратной линии отопления | G 1 1/4" |
| 5 | Слив водосборника дождевой воды | - |
| 6 | Положение отверстий системы дымоходов | - |
| 7 | Кронштейн для крепления изделия | - |
| 8 | Штуцер измерения давления газа | - |
| 9 | Подключение системы дымоходов/воздуховодов | ∅ 80/125 мм |
| 10 | Слив динамической системы воздухоотделения | - |
| Модель | Ширина (мм) | Глубина (мм) | Высота (мм) |
|---|---|---|---|
| VU 486/5-5 (H-INT IV) | 440 | 405 | 720 |
| VU 656/5-5 (H-INT IV) | 440 | 473 | 720 |
| Модель | Размер А (мм) |
|---|---|
| VU 486/5-5 (H-INT IV) | 405 |
| VU 656/5-5 (H-INT IV) | 473 |
| Обозначение | Направление | Минимальное расстояние (мм) | Примечание |
|---|---|---|---|
| A | Сверху | ≥ 275 | - |
| B | Снизу | ≥ 180 | Оптимально ≈ 250 мм |
| C | Сбоку | ≥ 5 | Оптимально ≈ 50 мм |
| D | Спереди | ≥ 500 | Можно уменьшить до 5 мм при наличии двери |
| Модель | Вес нетто (кг) |
|---|---|
| VU 486/5-5 (H-INT IV) | 37,8 |
| VU 656/5-5 (H-INT IV) | 47,2 |
| Компонент | Наличие |
|---|---|
| Предохранительный клапан | ✓ |
| Кран опорожнения | ✓ |
| Воздухоотделитель | ✓ |
| Уплотнения для гидравлических подключений | ✓ |
| Пакет со шлангом для слива конденсата | ✓ |

Главная благодарность за наш труд — это ваше спокойствие и комфорт в каждом уголке вашего жилья.




Газовый конденсационный котел ecoTEC plus VU 486 и 656/5-5 — это передовое решение для отопления и приготовления горячей воды. С КПД до 109% он значительно экономит топливо, снижая ваши затраты на отопление. Модулирующая горелка и цифровая DIA-система обеспечивают точный контроль и максимальную эффективность работы.







Котлы серии ecoTEC plus VU 486-656/5-5 от Vaillant используют передовую конденсационную технологию, которая позволяет извлекать дополнительное тепло из конденсата, образующегося при охлаждении дымовых газов. Это не только повышает КПД котла до 109% (Hi), но и значительно снижает расход газа, обеспечивая экономию до 25% за отопительный сезон. Такая эффективность делает котел ecoTEC plus VU 486-656/5-5 идеальным выбором для тех, кто ценит комфорт и заботится о своих расходах.



Котел ecoTEC plus VU 486-656/5-5 оснащен модулирующей горелкой с диапазоном мощности от 18% до 100%, что позволяет точно регулировать температуру и экономить ресурсы. Турбированная конструкция обеспечивает гибкость в организации системы дымоудаления.







Превратите ваш котел Vaillant в интеллектуальное устройство с системой vLINK. Управляйте, контролируйте и оптимизируйте работу вашего отопления и горячего водоснабжения из любой точки мира. Простое и удобное приложение делает ваш дом комфортным, а вашу жизнь — проще.

Регулируйте температуру, включайте или выключайте котел, настраивайте режимы работы прямо со смартфона. Больше не нужно беспокоиться, если вы забыли что-то изменить перед выходом из дома.

Управляйте отоплением в загородном доме, квартире или офисе через одно приложение. Все объекты под рукой!

Делитесь управлением с близкими. Теперь ваша семья тоже может контролировать комфорт в доме.

Решайте вопросы быстро и удобно. Общайтесь с сервисным центром прямо в приложении, без звонков и ожидания.
Мы используем файлы cookie и аналогичные технологии для улучшения вашего опыта на нашем веб-сайте. Прочтите нашу Политику конфиденциальности.